V roce 2026 čeká původní objekt pošty na Masarykově třídě v centru Opavy další etapa stavebních úprav. Dojde k rekonstrukci dalších pater, nástavbě dvou nových podlaží nebo například výstavby nového zázemí.
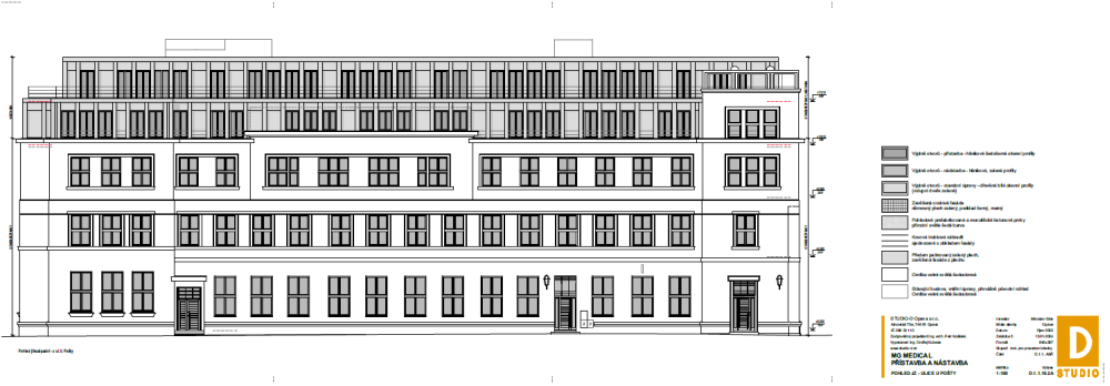
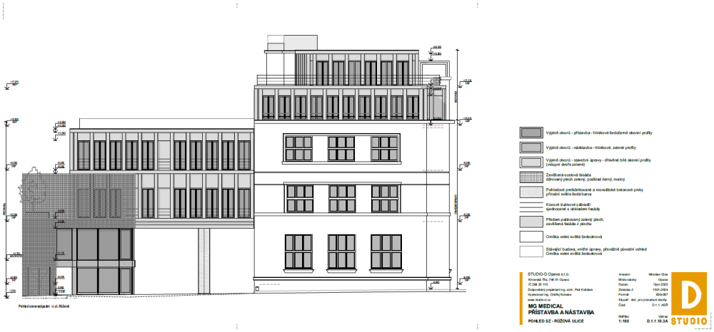
| Předmět plnění – stavební práce I. Rekonstrukce stávající budovy v rozsahu 2.NP – 3.NP II. Demontáž střechy a nástavba 4.NP a 5.NP III. Novostavba přístavby k současné budově IV. Demolice balíkového depa a novostavba zázemí stavby V. Realizace sítí v areálu stavby a realizace zpevněných ploch IV. Fasáda celého objektu (kombinace KZS a renovace štukové omítky) V objektu v roce 2024 a 2025 probíhala rekonstrukce I.PP a I.NP současné budovy. V těchto prostorách, po celou dobu rekonstrukce bude probíhat provoz lékařských ordinací. S uvedeným je potřeba při realizaci prací na objektu počítat. |
Pohledy navrhovaného stavu, projektová dokumentace je součástí příloh veřejné zakázky:




pramen: vhodne-uverejneni.cz






Eva Šmudlová :
A co jste -se udělalo s potrubní poštou , která v budově byla a jak vím tak i v hlavní budově Slezské nemocnice.
23.12.2025 14:35Ozývám se jako opavačka , která zná původní poštu i nemocnici. To mělo svou historickou hodnotu. Myslím , že využití mohlo být více prodebatované – umístění v “ centru” vedle Ostrožné ??????? Nechápu proč ubytování ? Ať mi někdo odpoví . Eva.smudlova@post.cz