Stručný popis veřejné zakázky:
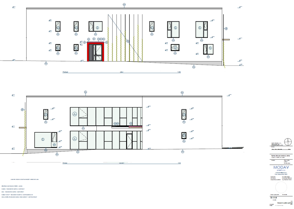
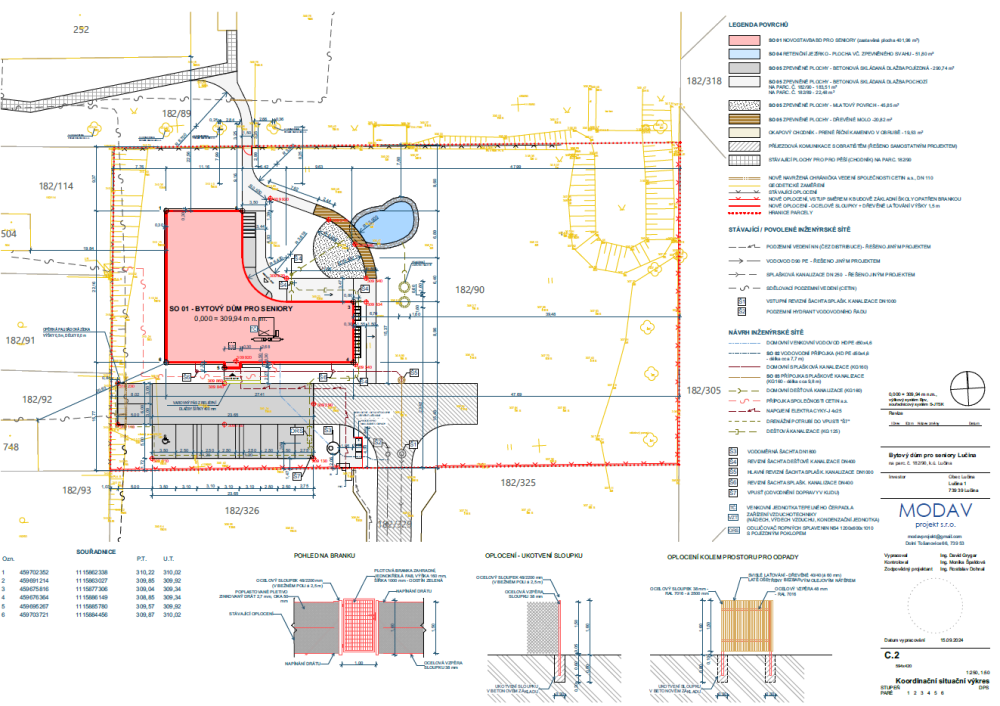
Předmětem veřejné zakázky je novostavba objektu o dvou nadzemních podlažích, která obsahuje 10 samostatných bytů a retenční jezírko, včetně napojení na dopravní a technickou infrastrukturu a zpevněné plochy. Objekt bude dále napojen na elektrickou energii, vodovodní řád a telekomunikační síť. Splaškové vody budou svedeny do kanalizačního řadu. Dešťová voda bude zachycena na střeše objektu a parkovišti a svedena do retenčního jezírka, kde bude dále vsakována pomocí vsakovacích jímek.
Projektová dokumentace je součástí příloh veřejné zakákzy:


Situace stavby:

pramen: vhodne-uverejneni.cz





Poslední komentáře
- 09.02 (Řadové domy Ostrava-Plesná) Tak budu vas nejblizsi soused:))
- 09.02 (Krnov se po 30 letech dočká protipovodňové ochrany) Boris Dressler: 🤦♂️
- 09.02 (Řadové domy Ostrava-Plesná) Plánuji koupi.
- 09.02 (Krnov se po 30 letech dočká protipovodňové ochrany) Přehrada nic nezachrání. Jen kšeft pro pár firem.
- 09.02 (Řadové domy Ostrava-Plesná) Copak? Už plánujete petici?
- 09.02 (Řadové domy Ostrava-Plesná) Něco víc k tomuto projektu? Zejména investo?
- 09.02 (28. října 206/47) Málem jsem ten barák nepoznal. Taková proměna...
- 09.02 (Prodejna Lidl Výškovická – aktuálně) Prý už se staví: https://moravskoslezsky.denik.cz/
- 09.02 (Řadové domy Ostrava-Plesná) Ví někdo, kdo je investor?
- 09.02 (ČKAIT varuje před novelou stavebního zákona) Vidím, že dle palců většina nerozumí tomu, jak fun
- 09.02 (Polyfunkční areál Ostrava) Pokud se postaví ty očíslované budovy vpravo, tak
- 09.02 (Špatný vtip Dubina pokračuje) Samotná idea mít zde přestupní terminál není špatn
- 09.02 (Krnov se po 30 letech dočká protipovodňové ochrany) ANO = systemovy problem.
- 09.02 (ČKAIT varuje před novelou stavebního zákona) Marian Kechlibar - Ostravska soft verze Rajchla pr
- 09.02 (ČKAIT varuje před novelou stavebního zákona) Vady a problémy ukáže až praxe, což bývá obvykle p
- 09.02 (ČKAIT varuje před novelou stavebního zákona) Administrativní změna přenesené působnosti výkonu
- 08.02 (Proluka Ostrava-Svinov) Tam by určitě prospělo udělat z těch 4 parkovacích
- 08.02 (ČKAIT varuje před novelou stavebního zákona) Martin [msstavby.cz]:
Vyjádřím se jenom k jed
- 08.02 (ČKAIT varuje před novelou stavebního zákona) Můžete mi prosím dát do souvislosti urychlení výst
[další..]